Description
Download PDF with all sizes
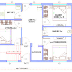
• 29×36 HOUSE PLAN
• 2D Plan with all Sizes in PDF
• Ground Floor Plan (Rental House Plan)
• Column Placement
Interior & Architectural Online Services (Digital Map)
Original price was: ₹3,000.00.₹1,500.00Current price is: ₹1,500.00.
Download PDF with all sizes
• 29×36 HOUSE PLAN
• 2D Plan with all Sizes in PDF
• Ground Floor Plan (Rental House Plan)
• Column Placement