Description
Download PDF with all sizes
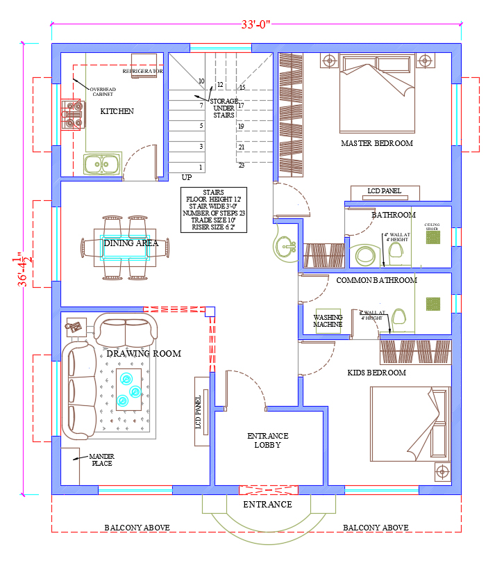
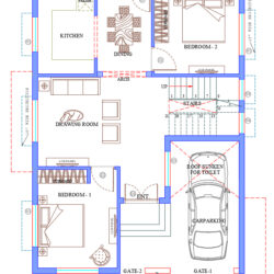
• 33×36 House Plan
• 2D Plan with all Sizes in PDF
• Ground Floor Plan
• Column Placement
Interior & Architectural Online Services (Digital Map)
Original price was: ₹3,500.00.₹1,750.00Current price is: ₹1,750.00.
Download PDF with all sizes
• 33×36 House Plan
• 2D Plan with all Sizes in PDF
• Ground Floor Plan
• Column Placement